전기 호이스트 브리지 크레인
제품 모형: LD
리프팅 용량: 1-30t
스팬:6m - 31.5m
리프트 높이: 3m - 60m
근로 의무: A3-A6
주문을 받아서 만들어진 서비스: 제공하십시오
작동 온도: -25 ~ 40도
설명
전기 호이스트 브리지 크레인 설명
LDA 모델 단일 거더 오버헤드 크레인은 1~20톤 용량의 경량 크레인의 일종입니다.
그것은 CD 모형 또는 MD 모형인 전기 호이스트와 일치합니다.
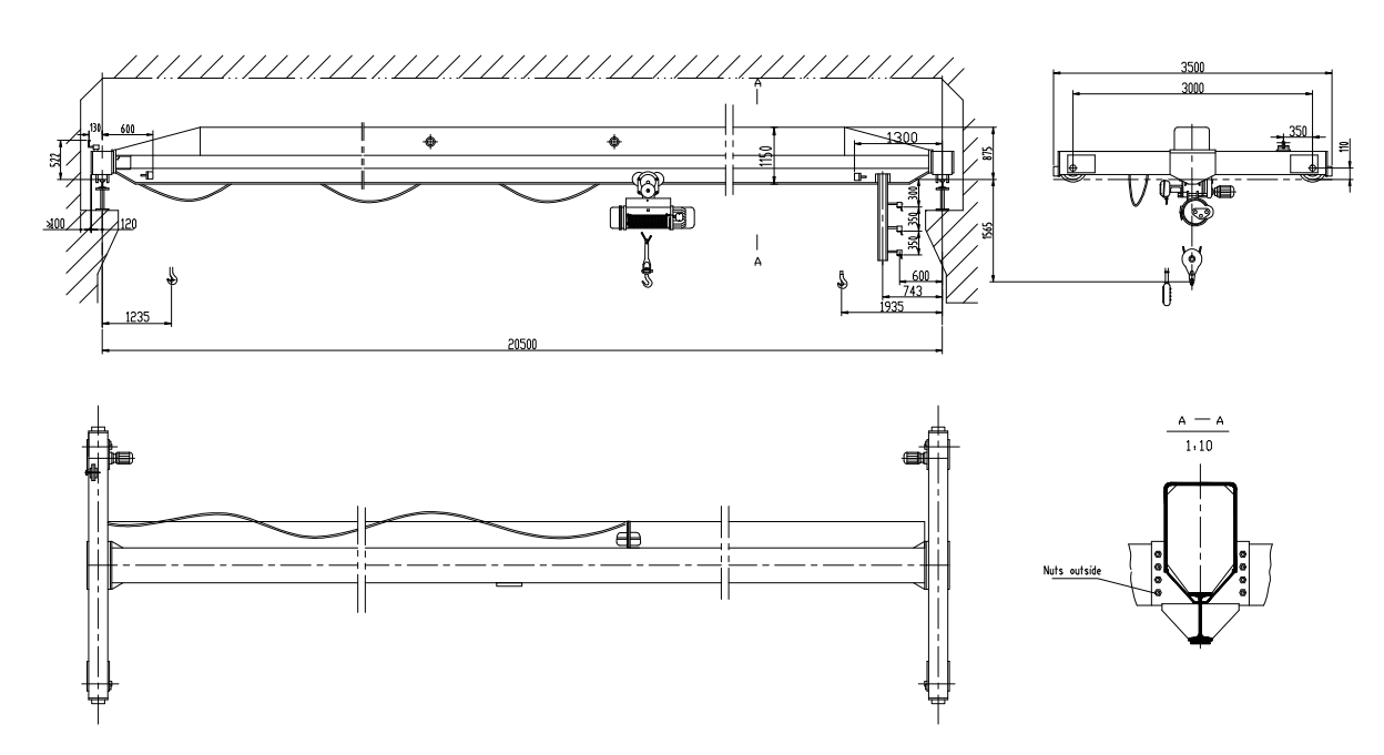
전기 호이스트 브리지 크레인 도면

전기 호이스트 브리지 크레인 매개변수
|
용량 |
톤 |
2 |
5 |
7 |
20 |
|
운영방식 |
프레스 버튼/리모컨이 있는 펜던트 라인 |
||||
|
속도 |
게양 |
8. 8/0.8 |
7. 7/0.7 |
3.5, 3.5/0.35 |
6. 6/0.6 |
|
게의 여행 |
20 |
||||
|
기중기의 여행 |
20(30) |
20 |
|||
|
전기 호이스트 |
유형 |
CD1-3 MD1-3 |
CD1-5 MD1-5 |
CD1-10 MD1-10 |
CD1-16 MD1-16 |
|
리프팅 높이 |
M |
6,9,12 |
6,9,12,18 |
9,12 |
9,12 |
|
작업 클래스 |
A3~A5 |
||||
|
전원 |
3-구문 50HZ 380V |
||||
전기 오버헤드 주행 크레인 기능
1. 저잡음, 연약한 시작 및 정지;
2. 안전하고 안정적인 작동;
3. 저비용 유지 보수, 긴 작업 수명;
4. 강한 상자 유형, 기계 손으로 용접.;
5. 바퀴, wirerope 드럼, 장치, 연결은 CNC manchine 센터, 최고 품질 관리에 의해 가공됩니다;
6. VVVF, IP54 또는 IP44, 절연제 종류 F 또는 H, 연약한 시작 및 매끄러운 달리기를 가진 slipring 모터, 또는 Sq.cage 모터
패키지 및 배송

1. 전기 부품은 운반시 왜곡을 줄이기 위해 고품질 합판 상자로 포장됩니다.
2. 메인 빔, 엔드 빔 및 전기 호이스트는 플라스틱 직조 천으로 포장됩니다. 운송시 마모를 줄일 수 있습니다.
자주하는 질문
문의를 보내실 때 다음 세부 정보를 알려주십시오.
1. 리프팅 용량은 얼마입니까?
2.팔 길이는 어떻게 되나요?
3.인양높이가 어떻게 되나요?(인양높이=훅에서 지면까지의 거리)
4. 리프팅 속도는 무엇입니까?(단일 속도 또는 이중 속도)
5. 어떤 제어 모드가 필요합니까?(펜던트 제어 또는 원격 제어 또는 캐빈)
6. 귀하의 국가에서 전원 공급 장치는 무엇입니까?(우리의 표준 전원 공급 장치는 380V, 3Ph, 50Hz입니다)
7. 다른 특별한 요구 사항이 있습니까? (레일 공급이 필요합니까? 얼마나 오래? 등)
인기 탭: 전기 호이스트 브리지 크레인 중국 제조 업체, 공급 업체, 맞춤형, 견적, 제안, 가격
문의 보내기
당신은 또한 좋아할지도 모릅니다










